Wismarstraat

Wismarstraat (ongenummerd) Deventer

Wismarstraat (ongenummerd) - Deventer

In samenwerking met Westhof Metaaltechniek

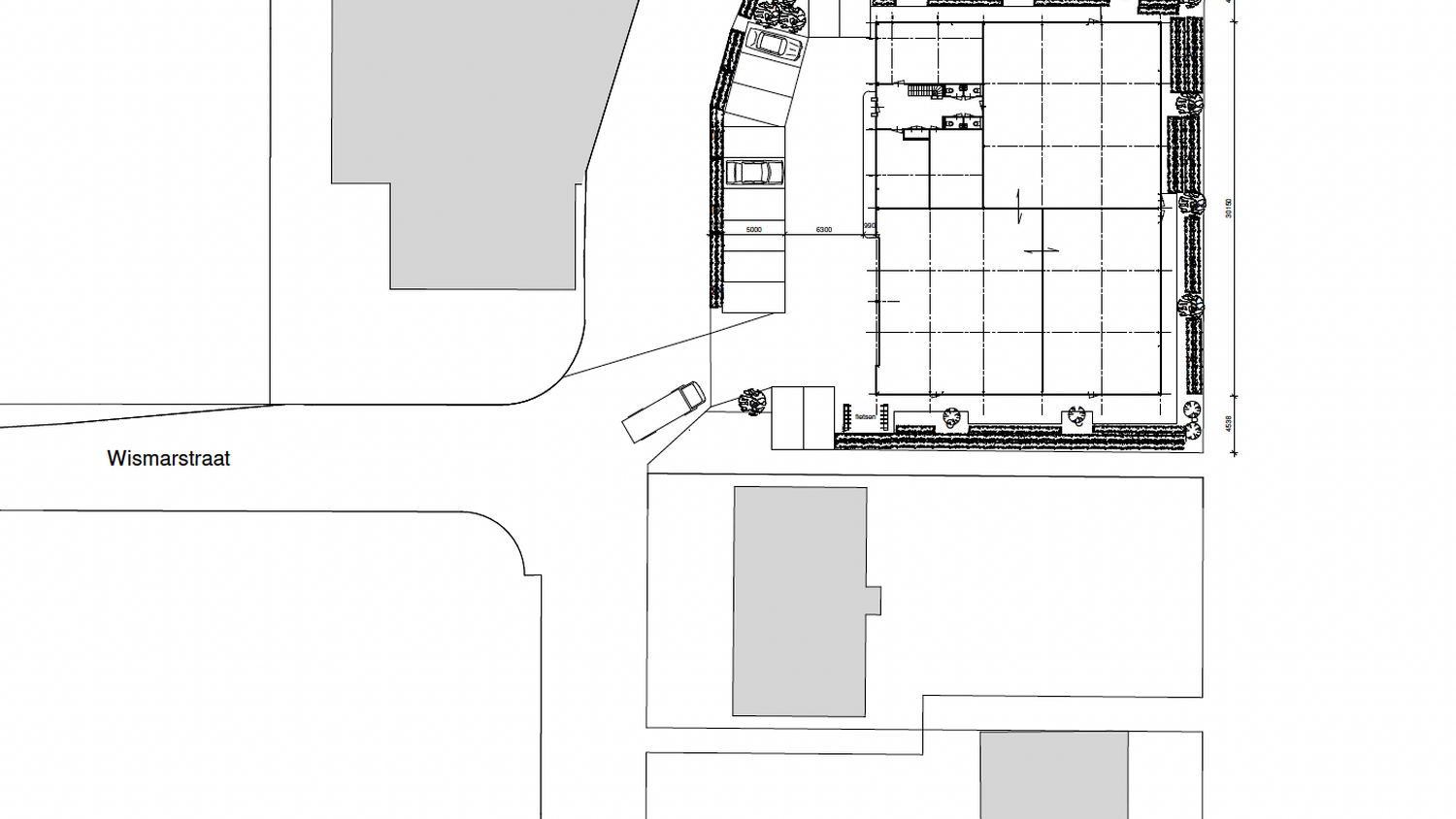
Aan de Wismarstraat in Deventer wil Westhof Metaaltechniek een nieuwe vestiging realiseren op een perceel dat nog geen specifieke invulling had binnen het geldende bestemmingsplan. Omdat het gewenste gebruik niet rechtstreeks mogelijk was, is voor dit initiatief een omgevingsvergunning met buitenplanse afwijking nodig.

Vincent is betrokken als adviseur bij het traject. Hij heeft het plan begeleidt en stelde de ruimtelijke onderbouwing op ter ondersteuning van de vergunningsaanvraag.

Onze bijdrage omvat:

  • Opstellen van de ruimtelijke onderbouwing, inclusief bijlagen, regels en afstemming met de relevante beleidskaders;
  • Opstellen van de vormvrije m.e.r.-beoordeling, gericht op het uitsluiten van milieueffecten;
  • Afstemming met de gemeente Deventer over procedure, onderbouwing en benodigde onderzoeken;
  • Advies aan de initiatiefnemer over planologische haalbaarheid en vertaling naar beleid en regelgeving.

Met deze bijdrage leveren we een belangrijke bouwsteen voor het mogelijk maken van bedrijfsontwikkeling binnen bestaand stedelijk gebied. Onze onderbouwing vormt de basis voor een juridisch-vergunbaar plan dat aansluit bij gemeentelijke doelstellingen en ruimtelijke kwaliteit.