Schermafbeelding 2025 07 08 om 21 33 12

Vier woningen Winterswijk

Vier woningen Winterswijk

In samenwerking met René Scholten Architectuur
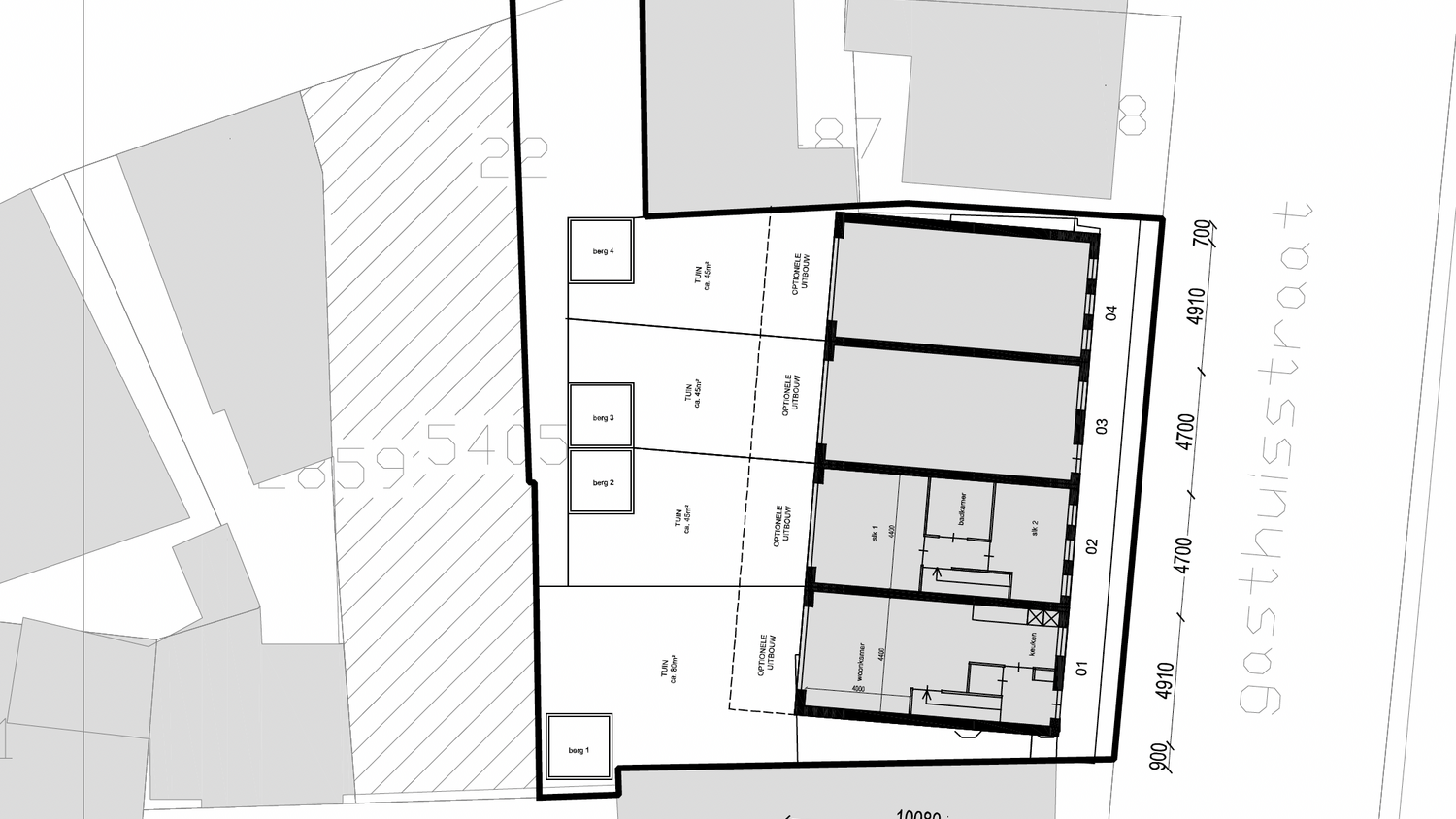
Aan de Gasthuisstraat 3-5 in het centrum van Winterswijk worden vier aaneengebouwde woningen gerealiseerd op een inbreidingslocatie. Deze compacte woningontwikkeling sluit aan bij de behoefte aan betaalbare en kleinschalige woonvormen in stedelijke omgeving, maar valt buiten het geldende bestemmingsplan. Om deze ontwikkeling mogelijk te maken is gekozen voor een kleine buitenplanse afwijking via de omgevingsvergunning.

Vincent begeleidt dit traject namens de initiatiefnemer en is verantwoordelijk voor de planbegeleiding en het opstellen van de ruimtelijke onderbouwing.

Zijn bijdrage omvat:

  • Opstellen van de ruimtelijke onderbouwing, inclusief juridische en beleidsmatige motivering;
  • Afstemming met de gemeente Winterswijk over beleidskaders, beeldkwaliteit en technische randvoorwaarden;
  • Coördinatie van benodigde onderzoeken, zoals geluid, stikstof en parkeren;
  • Procesbegeleiding van aanvraag tot besluitvorming, met focus op tijdige en volledige indiening van de vergunningsaanvraag;
  • Begeleiding bij beantwoording van gemeentelijke aanvullingsverzoeken tijdens het vergunningstraject.

Met deze rol zorgt Vincent ervoor dat het initiatief inhoudelijk en juridisch-planologisch goed onderbouwd is en soepel door het vergunningenproces loopt. Zo wordt er bijgedragen aan een zorgvuldig ingepaste woningontwikkeling op een waardevolle inbreidingslocatie in Winterswijk.